電動錐形閥
電動錐形閥是上歐公司根據進口產品的設計原理,結合國內地形條件和工況要求而開發設計的新型產品,通常作為水輪發電機組旁通閥的自由排放閥,和連續排放流量控制。該產品采用了倒置錐形柱塞閥芯結構,所以叫錐形閥。錐形閥有優越的消能效果,所以也叫消能閥,錐形閥常用于農田灌溉,所以又名灌溉閥。
產品說明
電動錐形閥是上歐公司根據進口產品的設計原理,結合國內地形條件和工況要求而開發設計的新型產品,通常作為水輪發電機組旁通閥的自由排放閥,和連續排放流量控制。該產品采用了倒置錐形柱塞閥芯結構,所以叫錐形閥。錐形閥有優越的消能效果,所以也叫消能閥,錐形閥常用于農田灌溉,所以又名灌溉閥。
結構特點
電動錐形閥由埋設管、閥體、套筒、電動裝置、絲桿、連桿等幾個部分組成,其結構為外套筒形式,即閥體固定,它是采用絲桿螺母伸縮動作,帶動外套筒上下動作,達到閥門的啟閉目的
電動錐形閥具有結構簡單,重量輕,消能效果好,操作靈活,維護方便,運行可靠,啟閉力小等特點。本閥在泄流時噴出水舌為喇叭狀,空中擴散摻氣,消能效果好,一般都不需要做消能措施,如果設置為淹沒式出流,側水下的消能也很簡單。該錐形閥廣泛用于水利,水電,水庫等工程上
產品用途
電動錐形閥作為水輪發電機組旁通閥的自由排放閥,或是連續排放流量控制。由于采用了倒置錐形柱塞閥芯而得名,簡稱錐形閥,又因其具有優異的消能效果,故又稱消能閥。錐形閥除了在流道終端設置有錐形閥芯之外,所有運動部件全部設置在閥門的過流通道外部,使得閥體內部流道通常順滑,流量大而壓降損耗少,其在整個工作范圍內不會產生氣蝕及振動;
主要性能

主要材質

序號 | 名稱 | 材料 |
1 | 進口管 | 鋼 |
2 | 密封圈 | NBR |
3 | 翼板 | 球墨鑄鐵/低合金鋼/碳鋼 |
4 | 套筒閘 | 不銹鋼 |
5 | 閥座 | 合金不銹鋼 |
6 | 噴管 | 鑄鐵/不銹鋼/低合金鋼/碳鋼 |
7 | 驅動壁 | 球墨鑄鐵/不銹鋼 |
8 | 導流器 | 不銹鋼 |
9 | 出口管 | 鋼 |
10 | 閥軸 | 不銹鋼 |
11 | 驅動機 | 德國AUMA或客戶指定 |
12 | 閥體 | 球墨鑄鐵/低合金鋼/碳鋼 |
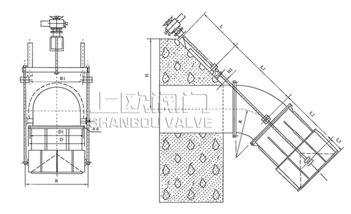
連接尺寸

DN | D | D1 | N-d | A | B | B1 | L | L1 | L2 | L3 | H | H1 | R | 重量Kg |
800 | 1015 | 950 | 24-33 | 920 | 1250 | 830 | 740 | 1160 | 1152 | 148 | 1085 | 150 | 850 | 1210 |
1000 | 1230 | 1160 | 28-36 | 1260 | 1500 | 1250 | 1460 | 1930 | 1400 | 375 | 1828 | 200 | 1050 | 2935 |
1200 | 1455 | 1380 | 32-39 | 1434 | 1696 | 1400 | 1520 | 1925 | 1603 | 410 | 1872 | 200 | 1250 | 3200 |
1400 | 1675 | 1590 | 36-42 | 1660 | 1870 | 1600 | 1340 | 2210 | 1790 | 437 | 1894 | 200 | 1450 | 4900 |
1600 | 1915 | 1820 | 40-48 | 1866 | 2100 | 1700 | 1530 | 2130 | 2150 | 600 | 2060 | 200 | 1650 | 6605 |
注:本電動錐形閥可按用戶要求設計制造
相關新聞
|
||||||||||||||||||||||||
![]() |
||||||||||||||||||||||||
| ||||||||||||||||||||||||








